• Commercial
    Sonnax Industries - 1996

    Type - Commercial
    Location - Rockingham, Vermont
    Status - Completed
    Awards - NNECPA Concrete Awards Outstanding Concrete Construction Award Winner 1998

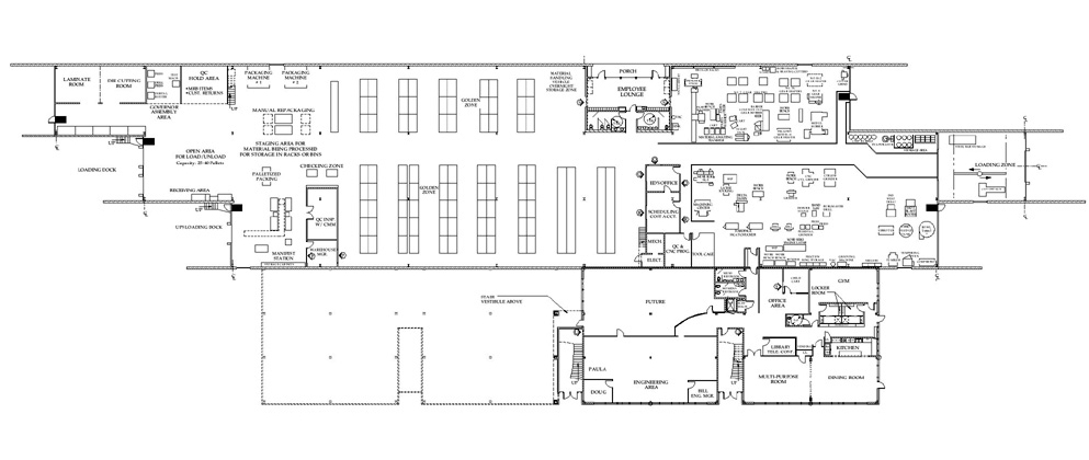
    Having outgrown their industrial incubator location, Sonnax Industries commissioned us to create a new building that reflected the owner's penchant for excellence and innovation. With operating costs in mind, several advanced alternative construction types were analyzed, including insulated panels and cavity wall structures. With its design featuring the largest use of stay-in-place concrete wall forms in North America at the time of its construction and many other innovative aspects, including high performance insulated clerestory glazing and daylight sensor switching, the system netted a $20,000 per year savings in energy costs.
Exterior view
Exterior View
Exterior View
Aerial View
Aerial View
Factory
Plan
Back To Beginning