• Public
    Mount Snow Master Plan - 2009

    Type - Public
    Location - West Dover, Vermont
    Status - Design Development

    LineSync Architecture is the lead architect for Mount Snow’s comprehensive master plan, developed over several years in concert with a team of consultants and focus groups. Phase One, Carinthia Base Area, includes residences, a community center, and a base lodge.

    LineSync Architecture continues to assist the client in visualizing options that ensure flexibility as their business plan evolves.

    Renderings by PiXate Creative

    Master Plans by SE Group and Vanasse Hangen Brustlin, Inc.
 
 
 
 
 
Residential Building A Perspective
Carinthia Base Lodge Perspective
Residential Building CDE Perspective
Residential Building CDE Perspective
Residential Building FG Perspective
Residential and Lodge Facades
Facade Materials
36" Fireplace Perspective
42" Fireplace Perspective
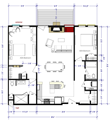
Residential 2-Bedroom Unit Plan
Residential 3-Bedroom Unit Plan
Overall Master Plan
Carinthia Master Plan
Back To Beginning